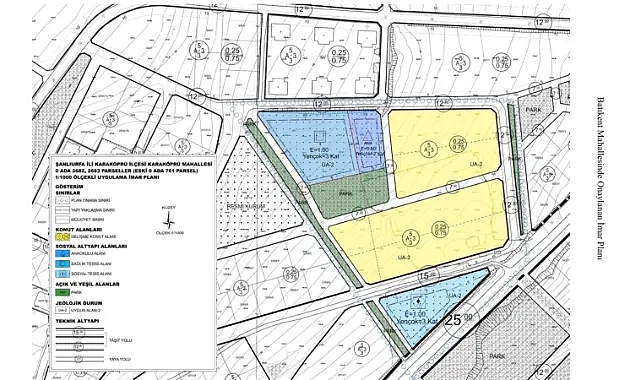
Cumhuriyet Halk Partisi (CHP) Şanlıurfa İl Başkanı Ferhat Karadağ, Karaköprü’de Kadın Doğum ve Çocuk Hastanesi için ayrılan yaklaşık 101 dönümlük alan ile Batıkent Mahallesi’nde bulunan yaklaşık 52 dönümlük Sağlık Tesis Alanı’nın konuta dönüştürülmesine tepki gösterdi. Karadağ, söz konusu plan değişikliğinin şehircilik ilkelerine ve 3194 sayılı İmar Kanunu’na açıkça aykırı olduğunu ifade etti.
SAĞLIK ALANLARININ DÖNÜŞÜMÜNE TEPKİKaradağ, “Halkın sağlığı için ayrılmış alanların bir gecede konuta dönüştürülmesi kabul edilemez. Bu karar, zaten yetersiz olan sosyal ve teknik altyapıyı tamamen göz ardı etmektedir” dedi.“ŞANLIURFA’NIN GELECEĞİ TEHLİKEYE ATILIYOR”Yapılan plan değişikliğinin kentin geleceğine zarar vereceğini belirten Karadağ, “Bu tür uygulamalar Şanlıurfa’nın planlı gelişimini sekteye uğratmakta ve kent yaşam kalitesini düşürmektedir” ifadelerini kullandı.“BU YANLIŞTAN DERHAL DÖNÜLMELİ”Karadağ, yetkililere çağrıda bulunarak, söz konusu alanların yeniden Sağlık Tesis Alanı olarak planlanması gerektiğini vurguladı.“ŞANLIURFA’NIN HAKKINI SAVUNACAĞIZ”
Açıklamasının sonunda Karadağ, “Sağlık alanlarını ranta kurban etmeyeceğiz. Şanlıurfa’nın hakkını her platformda savunmaya devam edeceğiz” dedi.
SAĞLIK ALANLARININ DÖNÜŞÜMÜNE TEPKİKaradağ, “Halkın sağlığı için ayrılmış alanların bir gecede konuta dönüştürülmesi kabul edilemez. Bu karar, zaten yetersiz olan sosyal ve teknik altyapıyı tamamen göz ardı etmektedir” dedi.“ŞANLIURFA’NIN GELECEĞİ TEHLİKEYE ATILIYOR”Yapılan plan değişikliğinin kentin geleceğine zarar vereceğini belirten Karadağ, “Bu tür uygulamalar Şanlıurfa’nın planlı gelişimini sekteye uğratmakta ve kent yaşam kalitesini düşürmektedir” ifadelerini kullandı.“BU YANLIŞTAN DERHAL DÖNÜLMELİ”Karadağ, yetkililere çağrıda bulunarak, söz konusu alanların yeniden Sağlık Tesis Alanı olarak planlanması gerektiğini vurguladı.“ŞANLIURFA’NIN HAKKINI SAVUNACAĞIZ”
Açıklamasının sonunda Karadağ, “Sağlık alanlarını ranta kurban etmeyeceğiz. Şanlıurfa’nın hakkını her platformda savunmaya devam edeceğiz” dedi.















